Simple Life Fund Closes First Acquisition - The Farm
- Thom Liggett

- Jul 2, 2025
- 1 min read
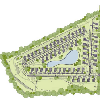
June 30, 2025 Flat Rock, NC: The Simple LIfe Real Estate Opportunity Fund has closed on its first fully entitled land acquisition in Flat Rock, NC. This land will be developed into 60 new home site lots that are available for lease to new tiny/cottage home owners that buy into our community. "The Farm" is an expansion to the highly successful Village and Hamlet communities adjacent to the new property. The combined communties have 393 lots along with two clubhouses, two pools, two dog parks, reflection gardens, bird watching area, dog washing facilities, walking trails, and more amenities.
Simple Life’s adult cottage communities offer resort style amenities via lot leases to moderate-income Gen Xers and Baby Boomer Retirees (45-70+) who are migrating to Western NC and South Carolina, downsizing into highly affordable communities.
Simple Life bridges the affordability gap by offering high quality, very affordable ($119,000 to $239,000) cottage homes.








header.all-comments